El proyecto
Edificio residential complex que desarrolla 45 homes, trasteros y garaje. La parcela, de forma irregular, se encuentra en el distrito de Carabanchel, barrio de Opañel, término Municipal de Madrid. Tiene una superficie de 1.003,76m².Su principal uso es residential complex colectivo. Su principal uso característico es residential complex vivienda colectiva en manzana cerrada con espacios libres privados, y garaje-aparcamiento como uso compatible.
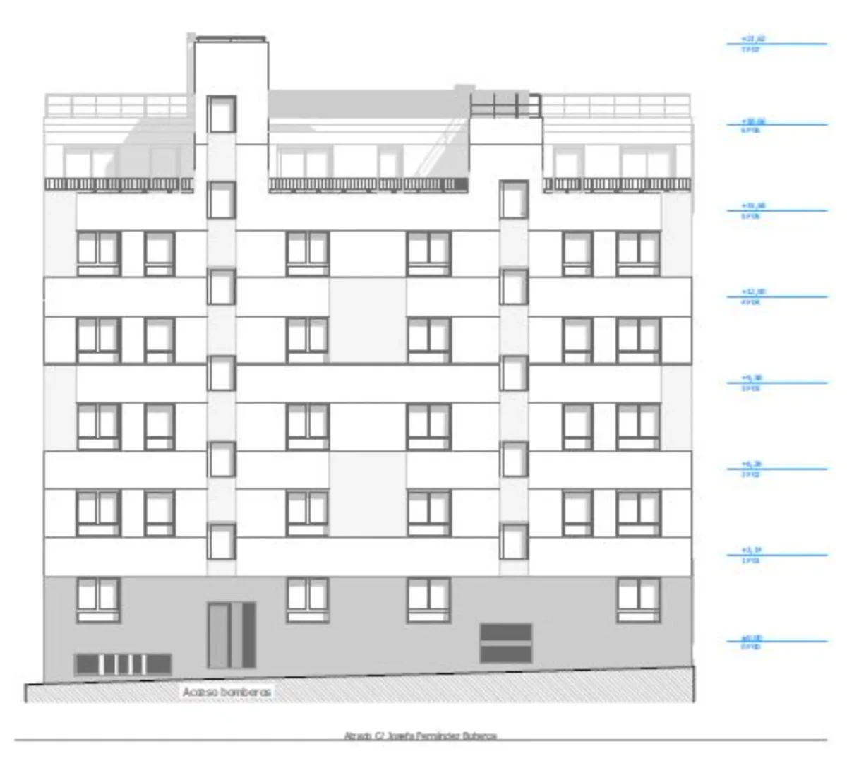
El edificio tiene 5 plantas más ático sobre rasante destinadas a homes. Además en planta baja se sitúan los accesos al portal y cuartos de instalaciones. El edificio cuenta con acceso a cuatro portales situados a cota de planta baja a los que se accede desde la calle Antonio Gonzalez Porras. El edificio cuenta con tres plantas bajo rasante destinadas a garaje, trasteros, espacio para bicicletas, sala polivalente, y cuartos de instalaciones. El acceso rodado a sótano -1 se realiza a través de la calle Antonio Gonzalez Porras.


Un programa de vivienda colectiva de 1, 2 y 3 bedrooms que se divide de la siguiente manera: 20 homes de 1 dormitorio, 20 homes de 2 bedrooms y 5 homes de 3 bedrooms, sumando un total de 45 homes.
Existen un total de 60 plazas de aparcamiento (19 de ellas se encuentran en la planta sótano 1, 20 en planta sótano 2 y 21 en planta sótano 3). Sistema estructural a base de pilares de hormigón armado y forjados unidireccionales de vigueta y bovedilla con vigas planas.
Sistema envolvente mediante Sistema de Aislamiento Térmico Exterior (SATE) que dota a la envolvente de un óptimo aislamiento térmico, acabado con un revestimiento mineral en diferentes colores según diseños de fachada sobre fábrica de ladrillo, cámara, segunda capa de aislamiento y trasdosado de cartón yeso; aislada acústica y térmicamente según normativa; fachada en LCV en planta baja y enfoscada en áticos.


