The Project
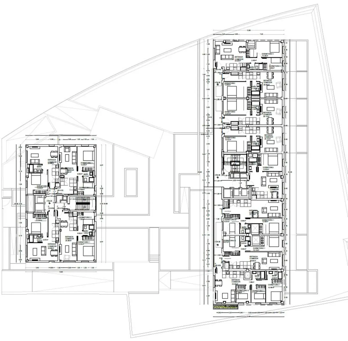
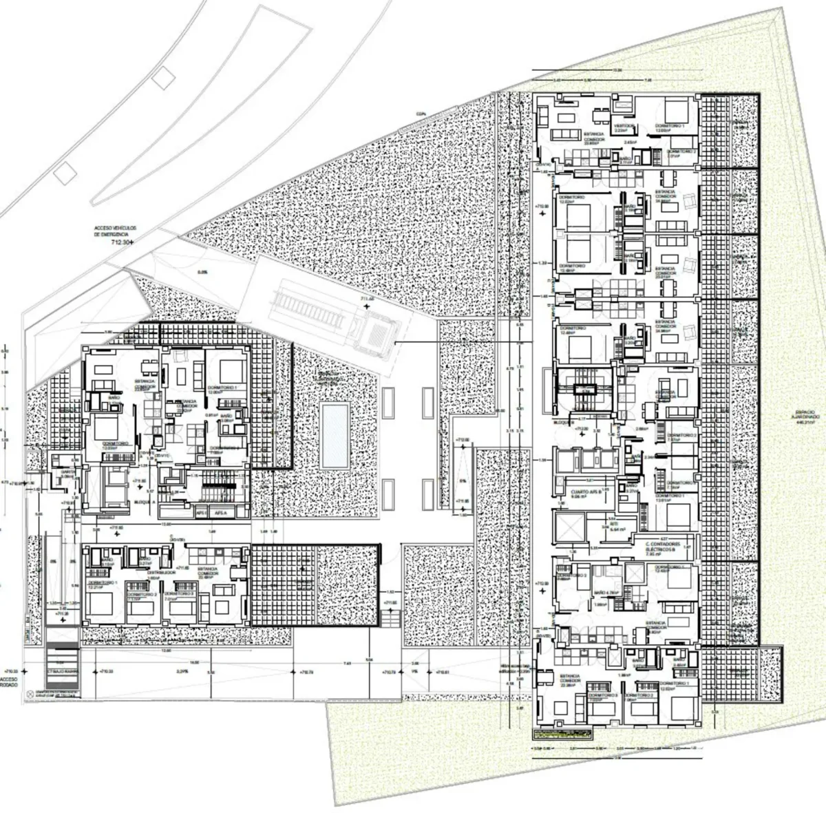
Edificio residencial que desarrolla 82 viviendas, trasteros y garaje. La parcela, de forma irregular, se encuentra en el Término Municipal de Madrid. Tiene una superficie de 2.497,42 m². Su principal uso es residencial colectivo.
El edificio A tiene 7 plantas sobre rasante destinadas a viviendas todas ellas. El edificio B tiene 7 plantas sobre rasante destinadas a viviendas y una planta ático-destinada a usos comunes. Además en planta baja se sitúan los accesos a ambos edificios. Cada edificio tiene un portal que, debido al desnivel de la parcela, se encuentran a distinta cota uno de otro. El edificio consta de dos plantas bajo rasante destinadas a garaje, trasteros, cuartos de servicio para la comunidad e instalaciones y un coworking. El acceso a ambos portales se produce desde la Avenida Pablo Iglesias, al oeste de la parcela.


Un programa de vivienda colectiva de 1, 2 y 3 dormitorios que se divide de la siguiente manera: 40 viviendas de 1 dormitorio, 33 viviendas de 2 dormitorios y 9 viviendas de 3 dormitorios, sumando un total de 82 viviendas.
Existen un total de 82 plazas de aparcamiento. Habrá un total de 4 plazas accesibles. Sistema estructural a base de pilares de hormigón armado y forjados unidireccionales de vigueta y bovedilla con vigas planas.
Sistema envolvente mediante Sistema de Aislamiento Térmico Exterior (SATE) que dota a la envolvente de un óptimo aislamiento térmico, acabado con un revestimiento mineral en diferentes colores según diseños de fachada sobre fábrica de ladrillo, cámara, segunda capa de aislamiento y trasdosado de cartón yeso; aislada acústica y térmicamente según normativa; fachada en LCV en planta baja y enfoscada en áticos.

