El proyecto
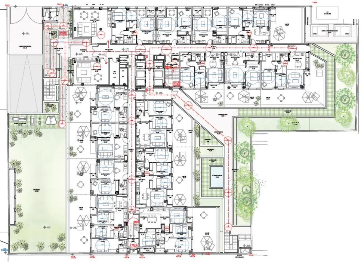
Edificio residential complex que consiste en un bloque en L que desarrolla 130 homes, trasteros y garaje Coworking y Gimnasio. La parcela, de forma rectangular, linda al norte con la Calle Miguel Solas y al este con la C/ Calcio. Se encuentra en el distrito de Villaverde, barrio de Butarque, (Madrid) .Tiene una superficie de 2.717,93m² según la ordenación. Su principal uso característico es residential complex en bloque abierto con espacios libres privados, y garaje-aparcamiento como uso compatible.
El edificio consta de planta baja más ocho plantas sobre rasante. La planta baja está destinada a usos comunes tales como coworking y gimnasio; y las ocho plantas superiores están destinadas a homes. Además en planta baja, se sitúan los accesos a los portales y las áreas ajardinadas. El edificio consta de dos plantas bajo rasante destinadas a garaje, cuartos de bicicletas, trasteros e instalaciones. El acceso a los portales se produce desde la Calle Calcio.


Un programa de vivienda colectiva de 1, 2 y 3 bedrooms que se divide de la siguiente manera: 56 homes de 1 dormitorio, 39 homes de 2 bedrooms y 35 homes de 3 bedrooms, sumando un total de 130 homes.
Existen un total de 135 plazas de aparcamiento (65 de ellas se encuentran en la planta sótano 1 y 70 en planta sótano 2).
Mediante recorrido accesible desde la cota de planta baja se accede a la urbanización , que está dotada de ajardinamiento, zonas estanciales y lámina de agua. El sótano-aparcamiento no ocupa la totalidad de la parcela por lo que las zonas ajardinadas sobre terreno natural posibilitan la plantación de árboles de alto porte.
Sistema estructural a base de pilares de hormigón armado y forjados unidireccionales de vigueta y bovedilla con vigas planas.
Sistema envolvente mediante Sistema de Aislamiento Térmico Exterior (SATE) que dota a la envolvente de un óptimo aislamiento térmico, acabado con un revestimiento mineral en diferentes colores según diseños de fachada sobre fábrica de ladrillo, cámara, segunda capa de aislamiento y trasdosado de cartón yeso; aislada acústica y térmicamente según normativa; fachada en LCV en planta baja y enfoscada en áticos.

