El proyecto
Edificio residential complex que desarrolla 36 homes, trasteros y garaje. La parcela, de forma rectangular, se encuentra en el distrito de Fuencarral- El Pardo, barrio de Peñagrande, término Municipal de Madrid. Tiene una superficie de 1.131,50m². Su principal uso característico es residential complex vivienda colectiva en bloque abierto con espacios libres privados, y garaje-aparcamiento como uso compatible.
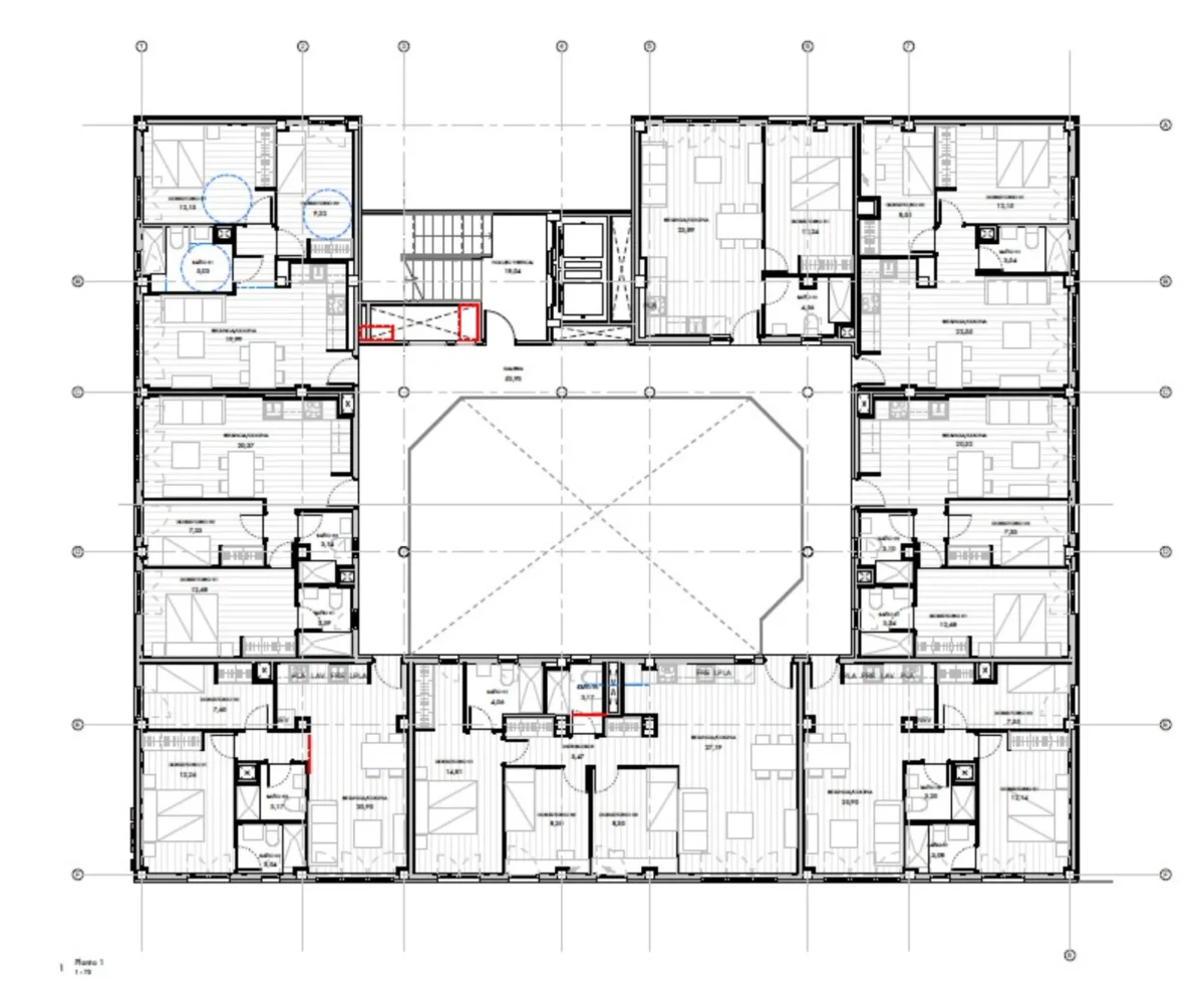
El edificio tiene 5 plantas sobre rasante destinadas a homes. Además en planta baja se sitúan los accesos al portal, gimnasio, una sala común y cuartos de instalaciones. El edificio cuenta con acceso al portal situado a cota de planta baja a los que se accede desde la calle Enrique Aldama nº2. El edificio cuenta con dos plantas bajo rasante destinadas a garaje, trasteros y espacio para bicicletas. El acceso rodado a sótano -1 se realiza a través de la calle Enrique Aldama nº2.


Un programa de vivienda colectiva de 1, 2 y 3 bedrooms que se divide de la siguiente manera: 8 homes de 1 dormitorio, 24 homes de 2 bedrooms y 4 homes de 3 bedrooms, sumando un total de 36 homes.
Existen un total de 36 plazas de aparcamiento de coche (17 de ellas se encuentran en la planta sótano 1 y 19 en planta sótano 2). Sistema estructural a base de pilares de hormigón armado y forjados unidireccionales de vigueta y bovedilla con vigas planas.
Sistema envolvente mediante Sistema de Aislamiento Térmico Exterior (SATE) que dota a la envolvente de un óptimo aislamiento térmico, acabado con un revestimiento mineral en diferentes colores según diseños de fachada sobre fábrica de ladrillo, cámara, segunda capa de aislamiento y trasdosado de cartón yeso; aislada acústica y térmicamente según normativa; fachada en LCV en planta baja y enfoscada en áticos.