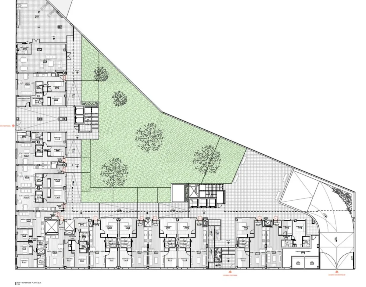
El proyecto
Edificio residential complex que consiste en un bloque en L que desarrolla 107 homes, trasteros y garaje Coworking y Gimnasio. La parcela, de forma triangular, linda al suroeste con la Calle Doctor Vallejo y al sureste con la Calle Fernandez Caro. Se encuentra en el distrito de Ciudad lineal, barrio de la Concepción, (Madrid) .Tiene una superficie de 1.411,33m² según la ordenación. Su principal uso característico es residential complex vivienda colectiva en manzana cerrada con espacios libres privados, y garaje-aparcamiento como uso compatible.
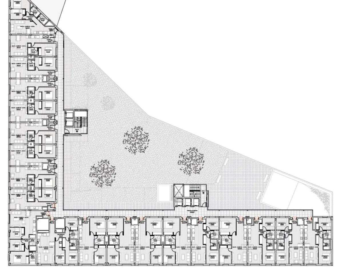
El edificio consta de planta baja más cuatro plantas sobre rasante y ático. La planta baja está destinada a usos comunes tales como coworking y gimnasio; y las cuatro plantas superiores están destinadas a homes. Además en planta baja, se sitúan los accesos a los portales y las áreas ajardinadas. El edificio se divide en dos portales. El edificio consta de dos plantas bajo rasante destinadas a garaje, cuartos de bicicletas, trasteros e instalaciones. El acceso a los portales es interior y se produce desde la Calle Doctor Vallejo y al sureste con la Calle Fernandez Caro.


Un programa de vivienda colectiva de 1, 2 y 3 bedrooms que se divide de la siguiente manera: 42 homes de 1 dormitorio, 54 homes de 2 bedrooms y 11 homes de 3 bedrooms, sumando un total de 107 homes.
Existen un total de 107 plazas de aparcamiento (48 de ellas se encuentran en la planta sótano 1 y 59 en planta sótano 2).
Sistema estructural a base de pilares de hormigón armado y forjados unidireccionales de vigueta y bovedilla con vigas planas.
Sistema envolvente mediante Sistema de Aislamiento Térmico Exterior (SATE) que dota a la envolvente de un óptimo aislamiento térmico, acabado con un revestimiento mineral en diferentes colores según diseños de fachada sobre fábrica de ladrillo, cámara, segunda capa de aislamiento y trasdosado de cartón yeso; aislada acústica y térmicamente según normativa; fachada en LCV en planta baja y enfoscada en áticos.

