The Project
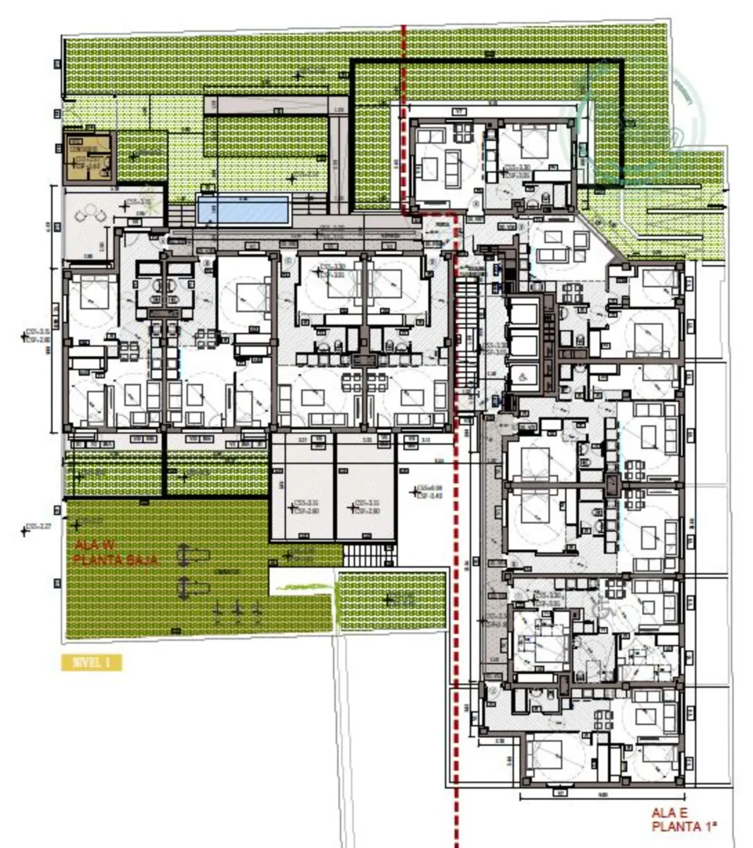
Residential building developing 58 homes, storage rooms, and a garage. The irregularly shaped plot is located in the Carabanchel district, Comillas neighborhood, in the municipality of Madrid. It has an area of 1,492.03m². Its main characteristic use is collective residential housing in an open block with private open spaces, and garage-parking as a compatible use.
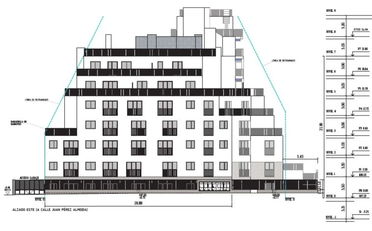
The building has 8 floors above ground for housing. In addition, the entrances to the lobby, a gym, a common room, and installation rooms are located on the ground floor. The building has access to the lobby located at ground floor level, which is accessed from Antonio Leyva Street No. 61. The building has three underground floors for a garage, storage rooms, and bicycle space. Vehicle access to basement -1 is through Juan Pérez Almeida Street No. 30.


A collective housing program of 1, 2, and 3-bedroom apartments that is divided as follows: 25 1-bedroom apartments, 27 2-bedroom apartments, and 6 3-bedroom apartments, totaling 58 apartments.
There are a total of 62 car parking spaces and three motorcycle spaces (20 of them are located on basement floor 1, 20 on basement floor 2, and 22 on basement floor 3). Structural system based on reinforced concrete pillars and unidirectional joist and block slabs with flat beams.
Envelope system using an Exterior Thermal Insulation System (SATE) that provides the envelope with optimal thermal insulation, finished with a mineral coating in different colors according to facade designs on a brick factory, chamber, second layer of insulation, and plasterboard lining; acoustically and thermally insulated according to regulations; LCV facade on the ground floor and rendered in attics.

