El proyecto
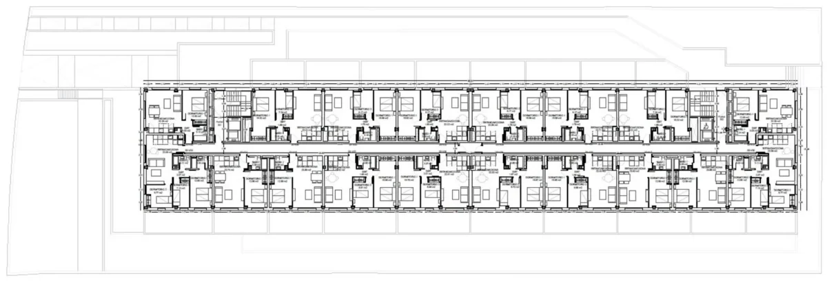
Este edificio residential complex está compuesto por un total de 90 homes, distribuidas en 4 plantas sobre rasante y dos plantas bajo rasante que albergan el garaje, trasteros y otros espacios comunes. La parcela, de forma irregular, tiene una superficie de 3.225,55 m² y se encuentra en el Término Municipal de Madrid. El diseño del edificio incluye accesos desde dos calles, Calle del Zafiro y Calle Bario, permitiendo un acceso cómodo a los dos portales situados en la planta baja. La planta baja también alberga los cuartos de instalaciones, mientras que en los sótanos se encuentran 96 plazas de aparcamiento, 4 de ellas accesibles, junto con un espacio para bicicletas, una sala polivalente y un área de coworking.


El programa de homes incluye opciones de 1, 2 y 3 bedrooms, con 36 homes de 1 dormitorio, 45 de 2 bedrooms y 9 de 3 bedrooms. Las homes están organizadas a ambos lados de un distribuidor longitudinal, optimizando el uso del espacio y la circulación. El diseño de la fachada se caracteriza por un sistema envolvente mediante el Sistema de Aislamiento Térmico Exterior (SATE), que garantiza un excelente aislamiento térmico y acústico. Las fachadas presentan un acabado con revestimiento mineral de diferentes colores y están construidas con materiales que aseguran la durabilidad y eficiencia energética del edificio.
La estructura del edificio está formada por pilares de hormigón armado y forjados unidireccionales de vigueta y bovedilla con vigas planas, lo que proporciona una gran estabilidad y seguridad. Además, las fachadas en planta baja están recubiertas con LCV y los áticos tienen un acabado enfoscado. Esta combinación de materiales de alta calidad y un diseño eficiente no solo optimiza el confort y la funcionalidad de las homes, sino que también cumple con la normativa vigente en cuanto a aislamiento acústico y térmico, ofreciendo un entorno de vida ideal para los residentes en pleno corazón de Madrid.

